Skip to main content

Meadow View

Boutique development of five stunning executive homes


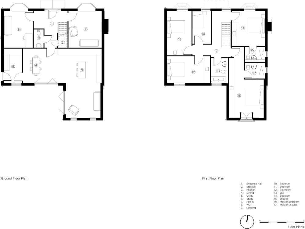
Meadow View at Carlton Miniott is a development of five newbuild three to five bedroom homes on an edge of village site that had been previously granted outline approval. 
 

About our client 
Orchard Developments has over 30 years’ experience in the housebuilding industry in Yorkshire. They build around 15 hand-crafted and high-quality new homes a year across several sites. They employ highly skilled craftsmen to ensure exceptional levels of finish and they offer buyers the chance to put their own mark on a home during the design phase. 
 

Our role
We were appointed by our client to secure reserved matters planning approval, to provide Building Control stage information to facilitate the build and co-ordinate other consultants requiring input into the technical design including structural engineers, the timber frame designer, SAP & Part O assessors. We then undertook staged monitoring of the builds to provide Professional Consultants Certificates for all of the new build plots across the development.  
 

Helping repeat clients succeed 
Orchard Developments is great example of one of our independent residential developer and housebuilder clients. Because they are seasoned property professionals, we can offer them a bespoke service. We provide tailored advice and get involved only where needed, for example to prepare building regulations drawings. We do this for Orchard Developments on an on-going basis. 
 

 

Drawings


Photography

Location

Carlton Miniott

Client

Orchard Developments

Client Type

Showcase, Housebuilder

Sector

Residential